





















Piața Amzei – Mendeleev | Eleganță Interbelică | Renovat
Bucuresti
255.500€
Camere
3
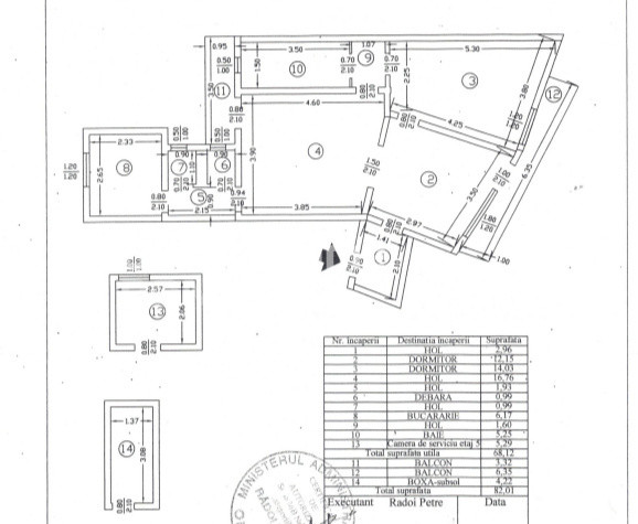
Suprafata utila
68.12 mp
Suprafata construita
81.70 mp
Etaj
Etaj 3
Bai
1
An constructie
1940
- ID:P17272
- Nr. camere:3
- Nr. dormitoare:1
- S. utila:68.12 mp
- S. construita:81.70 mp
- Comp.:Semidecomandat
- Etaj:Etaj 3
- Nr. bucatarii:1
- Nr. bai:1
- Nr. balcoane:2
- An constructie:1940
- An renovare:2025
- Structura:Beton
- Tip imobil:Bloc
- Regim inaltime:P+4
Descriere
Victor Sima ^ Global Home Romania ^ Imobiliare ^ Piata Amzei-Mendeleev
Clădire neîncadrată în clase de risc seismic.
Avem disponibil pentru vânzare un apartament cu totul aparte, situat pe strada Mendeleev, într-un imobil interbelic cu arhitectură remarcabilă, dotat cu lift și păstrând farmecul autentic al perioadei.
Proprietatea se remarcă prin volumetrie, lumină și detalii specifice construcțiilor de epocă, fiind recent renovată integral, cu atenție la calitatea execuției și la păstrarea caracterului original.
– Suprafață utilă: 68.12mp
– Etaj: 3 / 4
– Compartimentare: semidecomandat (reconfigurat pentru spații ample)
– Camere: 3 camere transformate în 2
– Băi: 1
– Bucătărie: separată
– Balcoane: 2
– Depozitare: 2 spații (unul în pod, unul la demisol)
– Încălzire: centrală proprie
– Stare: renovat complet (instalații electrice și sanitare noi, finisaje atent alese)
– Imobil: clădire interbelică, cu lift, neîncadrată în clase de risc seismic
– Disponibilitate: imediată
Apartamentul oferă un ambient elegant și aerisit, cu camere largi și o atmosferă specifică locuințelor din centrul vechi al orașului, unde proporțiile și lumina naturală sunt elemente definitorii.
Poziționarea este una excelentă, în imediata apropiere a Pieței Amzei, cu acces rapid către restaurante, cafenele, zone culturale și principalele puncte de interes din centrul Bucureștiului.
O proprietate potrivită pentru cei care caută un spațiu cu identitate, fie pentru locuire, fie ca investiție într-una dintre cele mai dorite zone centrale.
Pentru vizionări sau mai multe detalii:
Victor Sima – Real Estate Broker – Global Home Romania
English version
Victor Sima ^ Global Home Romania ^ Real Estate ^ Piața Amzei-Mendeleev
Building not classified in seismic risk classes.
We are offering for sale a truly distinctive apartment located on Mendeleev Street, in an interwar building with remarkable architecture, equipped with an elevator and preserving the authentic charm of the period.
The property stands out through its generous volumes, natural light, and period-specific details, having been fully renovated with attention to quality and to maintaining its original character.
– Usable area: 68.12 sqm
– Floor: 3 / 4
– Layout: semi-detached (reconfigured for larger spaces)
– Rooms: originally 3 rooms, currently arranged into 2
– Bathroom: 1
– Kitchen: separate
– Balconies: 2
– Storage: 2 spaces (one on the attic, one in the basement)
– Heating: individual central heating
– Condition: fully renovated (new electrical and plumbing systems, carefully selected finishes)
– Building: interwar building with elevator, not seismic risk classified
– Availability: immediate
The apartment offers an elegant and airy atmosphere, with large rooms and a unique character typical for central historic properties, where proportions and natural light are defining elements.
The location is excellent, close to Piața Amzei, with quick access to restaurants, cafés, cultural venues, and the main points of interest in central Bucharest.
A property suited for those seeking a home with identity, either for living or as an investment in one of the city’s most desirable central areas.
For viewings or more details:
Victor Sima – Real Estate Broker – Global Home Romania
Citeste mai mult
Clădire neîncadrată în clase de risc seismic.
Avem disponibil pentru vânzare un apartament cu totul aparte, situat pe strada Mendeleev, într-un imobil interbelic cu arhitectură remarcabilă, dotat cu lift și păstrând farmecul autentic al perioadei.
Proprietatea se remarcă prin volumetrie, lumină și detalii specifice construcțiilor de epocă, fiind recent renovată integral, cu atenție la calitatea execuției și la păstrarea caracterului original.
– Suprafață utilă: 68.12mp
– Etaj: 3 / 4
– Compartimentare: semidecomandat (reconfigurat pentru spații ample)
– Camere: 3 camere transformate în 2
– Băi: 1
– Bucătărie: separată
– Balcoane: 2
– Depozitare: 2 spații (unul în pod, unul la demisol)
– Încălzire: centrală proprie
– Stare: renovat complet (instalații electrice și sanitare noi, finisaje atent alese)
– Imobil: clădire interbelică, cu lift, neîncadrată în clase de risc seismic
– Disponibilitate: imediată
Apartamentul oferă un ambient elegant și aerisit, cu camere largi și o atmosferă specifică locuințelor din centrul vechi al orașului, unde proporțiile și lumina naturală sunt elemente definitorii.
Poziționarea este una excelentă, în imediata apropiere a Pieței Amzei, cu acces rapid către restaurante, cafenele, zone culturale și principalele puncte de interes din centrul Bucureștiului.
O proprietate potrivită pentru cei care caută un spațiu cu identitate, fie pentru locuire, fie ca investiție într-una dintre cele mai dorite zone centrale.
Pentru vizionări sau mai multe detalii:
Victor Sima – Real Estate Broker – Global Home Romania
English version
Victor Sima ^ Global Home Romania ^ Real Estate ^ Piața Amzei-Mendeleev
Building not classified in seismic risk classes.
We are offering for sale a truly distinctive apartment located on Mendeleev Street, in an interwar building with remarkable architecture, equipped with an elevator and preserving the authentic charm of the period.
The property stands out through its generous volumes, natural light, and period-specific details, having been fully renovated with attention to quality and to maintaining its original character.
– Usable area: 68.12 sqm
– Floor: 3 / 4
– Layout: semi-detached (reconfigured for larger spaces)
– Rooms: originally 3 rooms, currently arranged into 2
– Bathroom: 1
– Kitchen: separate
– Balconies: 2
– Storage: 2 spaces (one on the attic, one in the basement)
– Heating: individual central heating
– Condition: fully renovated (new electrical and plumbing systems, carefully selected finishes)
– Building: interwar building with elevator, not seismic risk classified
– Availability: immediate
The apartment offers an elegant and airy atmosphere, with large rooms and a unique character typical for central historic properties, where proportions and natural light are defining elements.
The location is excellent, close to Piața Amzei, with quick access to restaurants, cafés, cultural venues, and the main points of interest in central Bucharest.
A property suited for those seeking a home with identity, either for living or as an investment in one of the city’s most desirable central areas.
For viewings or more details:
Victor Sima – Real Estate Broker – Global Home Romania
Specificatii
Centrala proprie
Calorifere
Aer conditionat
Parchet
Gresie
Ferestre Termopan
Usa intrare Metal
Bucatarie Nemobilata
Nemobilat
Interfon
Lift
Victor Sima
0745622578
Esti interesat de aceasta proprietate ?