










Premium Villa | Kiselefff - Docentilor | Demisol + Parter + 3 Etaje + Mansarda
Bucuresti, 1 Mai
1.249.000€
Camere
8
Suprafata utila
271 mp
Suprafata construita
395 mp
Bai
4
An constructie
1960
- ID:P12061
- Nr. camere:8
- Nr. dormitoare:3
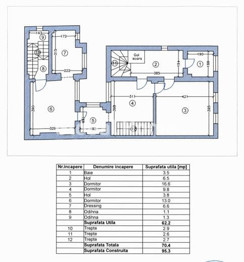
- S. utila:271.00 mp
- S. terase:23.00 mp
- S. utila totala:294.00 mp
- S. construita:395.00 mp
- S. teren:200.00 mp
- Nr. bucatarii:1
- Nr. bai:4
- Nr. parcari:2
- Front stradal:10.00 m
- An constructie:1960
- An renovare:2022
- Structura rezistenta:Caramida
- Regim inaltime:P+3+M
- Orientare:Est-Vest
Descriere
Gabriel Rogoveanu ^ Global Home Romania ^ Real Estate ^ Imobiliare:
Vilă Premium de Vânzare | Zona Kiseleff – București | Demisol + Parter + 3 Etaje + Mansardă + Terasă
O proprietate exclusivistă situată într-una dintre cele mai prestigioase zone ale Capitalei – Docenților - Kiseleff. Această vilă impresionează prin arhitectură elegantă, spații generoase și finisaje premium, oferind confortul unei reședințe de lux.
Detalii proprietate:
Suprafață utilă: 272 mp
Suprafață totală utilă: 290 mp
Suprafață construită: 395 mp
Suprafață teren: 200 mp
Suprafață teren liber: 105 mp
Regim de înălțime: Demisol + Parter + 3 Etaje + Mansardă + Terasă
Avantaje:
✔️ Locație exclusivistă – Kiseleff, una dintre cele mai căutate zone din București.
✔️ Acces rapid către principalele puncte de interes ale Capitalei.
✔️ Renovată complet în 2022 – finisaje premium, instalații noi, design modern.
✔️ Spații versatile, potrivite atât pentru rezidență, cât și pentru sediu de firmă, clinică sau boutique hotel.
✔️ Terasa generoasă, ideală pentru relaxare.
Această proprietate reprezintă un mix perfect între eleganță, confort și poziționare de excepție.
Citeste mai mult
Vilă Premium de Vânzare | Zona Kiseleff – București | Demisol + Parter + 3 Etaje + Mansardă + Terasă
O proprietate exclusivistă situată într-una dintre cele mai prestigioase zone ale Capitalei – Docenților - Kiseleff. Această vilă impresionează prin arhitectură elegantă, spații generoase și finisaje premium, oferind confortul unei reședințe de lux.
Detalii proprietate:
Suprafață utilă: 272 mp
Suprafață totală utilă: 290 mp
Suprafață construită: 395 mp
Suprafață teren: 200 mp
Suprafață teren liber: 105 mp
Regim de înălțime: Demisol + Parter + 3 Etaje + Mansardă + Terasă
Avantaje:
✔️ Locație exclusivistă – Kiseleff, una dintre cele mai căutate zone din București.
✔️ Acces rapid către principalele puncte de interes ale Capitalei.
✔️ Renovată complet în 2022 – finisaje premium, instalații noi, design modern.
✔️ Spații versatile, potrivite atât pentru rezidență, cât și pentru sediu de firmă, clinică sau boutique hotel.
✔️ Terasa generoasă, ideală pentru relaxare.
Această proprietate reprezintă un mix perfect între eleganță, confort și poziționare de excepție.
Specificatii
Curent
Apa
Canalizare
Centrala proprie
Aer conditionat
Izolatie Exterior
Vopsea lavabila
Parchet
Gresie
Usa intrare Metal
Usa interior Celulare
Usa interior Lemn
Esti interesat de aceasta proprietate ?