


Spatiu Comercial 295 MP - Vitrina 22ML | Complex Comercial Pajura
Bucuresti, Pajura
950.000€
Camere
10
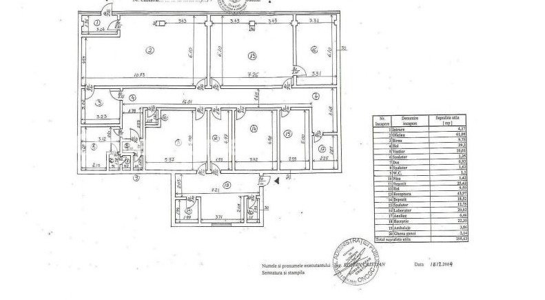
Suprafata utila
295 mp
Suprafata construita
340 mp
An constructie
1960
- ID:P11194
- Nr. camere:10
- S. utila:295.00 mp
- S. construita:340.00 mp
- S. vitrina:22.00 m
- Front stradal:22.00 m
- Comp.:Compartimentat
- Nr. bai:4
- An constructie:1960
- Structura rezistenta:Caramida
Descriere
Gabriel Rogoveanu ^ Global Home Romania ^ Real Estate ^ Imobiliare:
Spatiu Comercial in suprafata de 295 Mp cu o vitrina de 22ML, in cadrul complexului comercial Pajura.
Spatiul este amplasat in cadrul zonei rezidentiale a cariterului Bucurestii Noi din Sector 1.
Proprietatea este inchirata si produce venituri.
Citeste mai mult
Spatiu Comercial in suprafata de 295 Mp cu o vitrina de 22ML, in cadrul complexului comercial Pajura.
Spatiul este amplasat in cadrul zonei rezidentiale a cariterului Bucurestii Noi din Sector 1.
Proprietatea este inchirata si produce venituri.
Specificatii
Curent
Apa
Canalizare
Gaz
Centrala proprie
Aer conditionat
Izolatie Exterior
Vopsea lavabila
Parchet
Gresie
Apometre
Complet mobilat
Interfon
Videointerfon
Administrare
Esti interesat de aceasta proprietate ?